Exchange the PPS sequencer module
Before you begin
Use approved ESD procedures to prevent damage.
Notes:
- All the cables and FRUs to be removed must be uniquely identified so they can be reinstalled correctly.
- If an installed earthquake resistance kit prevents you from accessing this FRU, refer to MAP1600.
DANGER
Hazardous
voltage, current, or energy levels are present inside of a component
to which this label is attached. (L001)

Remove the primary power supply (PPS) sequencer module
About this task
Note: It is normal for various PPS LED indicators to stay lit until the
mainline input CB is switched off and the J3 PPS-to-PPS communication cable is disconnected. The
communication cable supplies signals and logic voltages so the PPS control circuitry can stay active
in the event of loss of input power to one PPS.
Procedure
- If this rack is a machine type 2107 (not 242x), then see MAP2512 to ensure the 5/12V DDM power module's heavy black power cables are properly crimped into the cable connectors before continuing.
- To locate this FRU, take one of the following actions and then return here and
continue to replace the FRU:
- If this FRU has a FRU identify indicator, use the FRU identify indicator,
which is listed in MAP1240 Locating FRUs by using identify indicators.
If not, use the location
code.Note: There might be cases where the FRU failure or fencing conditions prevent the FRU LED indicator from being lit even if the FRU has power.
- Use the location code, which is listed in MAP1245 Finding FRUs by using location codes.
- If there is no FRU identify indicator or location code, you were sent here by an isolation MAP or symbolic FRU procedure. Use the information in that procedure and the figures in this procedure to locate the proper part to exchange.
- If this FRU has a FRU identify indicator, use the FRU identify indicator,
which is listed in MAP1240 Locating FRUs by using identify indicators.
If not, use the location
code.
- Most, but not all, FRUs have identify indicators. Use the flashing amber or solid blue FRU identify indicators to ensure that you are working
on the correct enclosure or FRU.
- The
light path
identify LEDs are a hierarchy of LEDs that can identify the rack, enclosure, FRU, and even the FRU connector to which a cable is connected. - For more information, refer to MAP1240 Locating FRUs by using identify indicators.
- The
-
Do not use the PPS FAULT LED indicator
to identify the PPS being
repaired.
- When the failing PPS is being repaired, the PPS FAULT LED indicator on the working PPS in
the same rack might be on solid.
The working PPS is indicating that the PPS being repaired is not available for use. - Use the FRU Identify LED indicator
to identify the PPS being
repaired.
Figure 1. LEDs on the PPS (front) 
- When the failing PPS is being repaired, the PPS FAULT LED indicator on the working PPS in
the same rack might be on solid.
- If this is an expansion rack and it has old level sheet metal, the sheet metal
baffle
to the left of the gate and at the bottom of the storage enclosure chassis might need to be
removed to allow the gate to swing open. Remove the two screws
that fasten the baffle to the 19" rack mount vertical rails. If the baffle is the new level
sheet metal, it has a flexible plastic cutout that bends out of the way when the gate is swung
open.
Figure 2. Air baffle 
- Remove the two screws
and open the 208VDC bus bar gate
to the service position. See Figure 3.
Figure 3. 208VDC bus bar gate service position 
-
Have the customer remove power to the PPS being replaced. See Figure 4.
-
Instruct the customer to switch off the circuit breaker that supplies mainline ac voltage to
the power receptacle for the primary power supply (PPS) you are
repairing.
Attention: Use lockout and tagout procedures as defined in the Electrical Safety for IBM® Customer Engineers.
-
Observe the front of the PPS. Is the AC INPUT GOOD LED indicator off?
- Yes, the customer has removed power from the correct PPS. Continue with the next step.
- No, stop. The customer has not removed power from the correct PPS.
- Determine which PPS the customer has removed power from.
- Have the customer restore power to the PPS. The PPS may not power back on fully.
- Observe the LED indicators on the front of both PPSs with a PPS that is fully powered on. If the PPS did not power-on fully, you need to do a pseudo repair of the PPS to power it on. A pseudo repair of the PPS means that you use the normal FRU replacement procedures, but you do not replace or even disconnect the PPS cables. Refer to MAP1230 Replace a FRU without using a serviceable event.
- After the PPS is powered back on, return to this step and have the customer switch off the circuit breaker to the proper PPS.
-
Instruct the customer to switch off the circuit breaker that supplies mainline ac voltage to
the power receptacle for the primary power supply (PPS) you are
repairing.
-
Remove power and mainline power cord from the PPS.
-
Set the PPS ac input power module CB00 switch to Off (down)
.
-
Disconnect the mainline power cord from the PPS ac input power module. Push the two release
levers
.
Figure 4. Removing the ac mainline power cord
-
If repairing PPS-2 (the lower PPS), remove the cable ties
securing the mainline
power cable to PPS-2 (lower PPS). Remove the screw securing the mainline power cable bracket, and
then remove the mainline power cable bracket
. See Figure 5.
Figure 5. Power supply main line 
-
Set the PPS ac input power module CB00 switch to Off (down)
-
At the rear of the PPS REMAINING IN USE by the customer, disconnect the
PPS-to-PPS communication cable
at the bottom right of the PPS sequencer module (see Figure 6).
Notes:- Disconnecting the cable from the working PPS will protect the working PPS. Then, when the other end of the cable is disconnected from the PPS being repaired, no pins inside that connector will be able to touch ground and shut down the working PPS that remains in use.
- This removes the remaining logic power from the PPS being repaired, and all PPS LEDs should now be off.
Figure 6. PPS rear view, lower right: PPS-to-PPS communication cable connection 
-
At the rear of the PPS BEING REPAIRED, disconnect the
PPS-to-PPS communication cable
at the bottom right of the PPS sequencer module.
- If you are repairing:
- PPS-1 (upper PPS) - it is possible to replace the sequencer module with the PPS in place. You must temporarily move any cables and cable brackets that block the sequencer from being removed.
- PPS-2 (lower PPS) - the sequencer module is blocked by cables that go between the bus bars to the right and 208 VDC bus bar gate to the left. You will be directed to slide the PPS forward into the service position.
- At the rear of the sequencer module being replaced, disconnect all the cables.
-
If you are repairing PPS-2 (lower PPS), disconnect the remaining cables from the rear of the
PPS.
- At the rear of the PPS, disconnect all the cables.
- Remove the cable ties.
- Remove the green/yellow ground wire from the PPS.
- Unscrew the two silver thumbscrews securing the PPS sequencer module. Do not remove the module at this time.
-
If you are repairing PPS-2 (lower PPS), slide the PPS out to the service position.
-
At the front of the rack, remove the eight hex head screws that fasten the PPS chassis to the
rack
. See Figure 7.
Figure 7. Primary power supply (PPS) retaining screws 
-
Slide the PPS out just far enough to allow you to remove the PPS sequencer module. Figure 8 shows the PPS fully forward.
Figure 8. Move PPS to service position 
-
At the front of the rack, remove the eight hex head screws that fasten the PPS chassis to the
rack
-
Remove the PPS sequencer module.
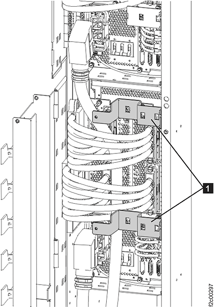
-
The next steps may require you to remove one or more cable routing brackets from the
rear of the frame so that there is clearance to remove the PPS sequencer module. Each bracket is
held by two screws that only need to be loosened, not removed, for the bracket to be moved. See
Figure 9.
Figure 9. Cable routing brackets
-
At the rear of the rack, remove the sequencer module
. Move the release lever (Primary
Power Supply [PPS]) down and then slide
the module out. See Figure 11.
Note: If the sequencer module slides out about 1 inch (2.5 cm) and then stops, it is hitting the PPS tray tab beneath it. The PPS assembly will need to be moved slightly to the right. At the bottom left of the PPS, insert a screw driver between the PPS tray vertical sheetmetal and the PPS. See Figure 10,
. Apply gentle pressure to move
the PPS assembly to the right until the sequencer module
releases.Figure 10. Gently pry PPS assembly to right 
Figure 11. Remove sequencer module 
-
The next steps may require you to remove one or more cable routing brackets from the
rear of the frame so that there is clearance to remove the PPS sequencer module. Each bracket is
held by two screws that only need to be loosened, not removed, for the bracket to be moved. See
Figure 9.
Install the primary power supply (PPS) sequencer module
Procedure
- Do not connect any rear cables until directed in later steps. The rear cables will be connected in a specific sequence.
-
Install the PPS sequencer module. See Figure 12.
- Ensure the ac input power module CB00 switch is off (down).
- Start with the sequencer module release lever in the down position as you slide the module into the PPS.
- Move the release lever up to fully seat the module.
Figure 12. Install the sequencer module
-
If the PPS was moved out to the service position, move it back in to the operating
position.
- At the front of the rack, press the slide release levers and then slide the PPS chassis fully into the rack. See Figure 13.
-
Install the eight hex head screws that fasten the PPS chassis to the rack
. See Figure 7.
-
If you are repairing PPS-2 (lower PPS) FRUs at the rear of the rack, install the PPS-2 bracket
(if present).
Figure 13. Move PPS to operating position
- At the rear of the PPS, ensure the enable/disable switches on the rear modules (sequencer and 5/12V DDM power modules) are in the On position (up).
-
At the front of the PPS, ensure that there are no LED indicators lit or blinking.
Note: If a PPS LED is lit, one or more cables are connected that should not be connected. Disconnect them and then repeat this step.
-
At the rear of the PPS, connect the
and
cables to the sequence
module.
Figure 14. PPS rear view, lower right: PPS-to-PPS communication cable connection 
- At the rear of the PPS, connect the J6 cable. See Figure 14.
-
At the front of the PPS, observe the LED indicators.
Are any lit?
- Yes, stop and contact your next level of support. You have the
"failed diode" problem in one of the battery enclosures in this rack.
You can continue to complete the PPS replacement. After that is complete, isolate and repair the "failed diode" problem.
- No, go to the next step.
- Yes, stop and contact your next level of support. You have the
"failed diode" problem in one of the battery enclosures in this rack.
-
Connect the remaining rear cables except the
PPS-to-PPS communication cable
and the mainline power cord.
Note: Install the green/yellow ground wire, ensuring all the contact washers are in place. - Reinstall any cable routing bracket that was removed.
-
At the rear of the PPS BEING REPAIRED, connect the
PPS-to-PPS communication cable
at the bottom right of the PPS sequencer module.
-
At the rear of the PPS REMAINING IN USE by the customer, connect the
PPS-to-PPS communication cable
at the bottom right of the PPS sequencer module.
Note: One or more of the PPS LEDs may now be lit on the PPS being repaired. - Ensure that the PPS AC input power module CB00 switch is Off (down).
- Connect power.
- Connect the mainline power cable to the PPS and ensure both latches are secure.
- Secure the mainline power cable from PPS-1 (upper PPS) to the PPS-2 mainline power cable bracket with the cable ties.
- Set the PPS ac input power module CB00 switch to On (up).
- Instruct the customer to switch on the mainline circuit breaker that supplies mainline ac voltage to the power receptacle for the primary power supply that you are repairing.
- Pivot the 208VDC bus bar gate closed being careful that
both mainline power cables lay in the space between the two 208 VDC
bus bars. Fasten the gate shut with the two screws. Note: If this is an expansion rack and the sheet metal baffle to the left of the gate was removed, reinstall it now with the two screws.
- Exit this service information center parts exchange procedure and return to the procedure that sent you here.