Exchange the storage enclosure to upper fan sense card cable
Before you begin
Use approved ESD procedures to prevent damage.
Attention:
- This procedure is not a stand-alone procedure. Customer disruption and damage to the hardware might occur when microcode and power boundaries are not in the proper conditions for this service action.
- If a serviceable event FRU repair directed you to this procedure, the microcode and power boundaries are already set.
- If a serviceable event FRU repair did not direct you to this procedure, see MAP1230 Replace a FRU without using a serviceable event.
Notes:
- All the cables and FRUs to be removed must be uniquely identified so they can be reinstalled correctly.
- If an installed earthquake resistance kit prevents you from accessing this FRU, refer to MAP1600.
Note: This
procedure is disruptive and requires that the storage facility be
powered off.
About this task
Determine the condition
that applies:
- You are here to replace a sense cable in a base rack, go to step 1.
- You are here to replace a sense cable that is connected to storage enclosures in the upper half of an expansion rack, go to step 1.
- You are here to replace a sense cable that is connected to storage enclosures in the lower half of an expansion rack, go to Cable, Storage Enclosure to Fan Sense Card, lower.
Remove storage enclosure to upper fan sense cable
Procedure
- To locate this FRU, take one of the following actions and then return here and
continue to replace the FRU:
- If this FRU has a FRU identify indicator, use the FRU identify indicator,
which is listed in MAP1240 Locating FRUs by using identify indicators.
If not, use the location
code.Note: There might be cases where the FRU failure or fencing conditions prevent the FRU LED indicator from being lit even if the FRU has power.
- Use the location code, which is listed in MAP1245 Finding FRUs by using location codes.
- If there is no FRU identify indicator or location code, you were sent here by an isolation MAP or symbolic FRU procedure. Use the information in that procedure and the figures in this procedure to locate the proper part to exchange.
- If this FRU has a FRU identify indicator, use the FRU identify indicator,
which is listed in MAP1240 Locating FRUs by using identify indicators.
If not, use the location
code.
- Most, but not all, FRUs have identify indicators. Use the flashing amber or solid blue FRU identify indicators to ensure that you are working
on the correct enclosure or FRU.
- The
light path
identify LEDs are a hierarchy of LEDs that can identify the rack, enclosure, FRU, and even the FRU connector to which a cable is connected. - For more information, refer to MAP1240 Locating FRUs by using identify indicators.
- The
-
Power off the storage facility subsystem and management console.
- Use the management console to power off the storage facility subsystem.
-
Set the local/remote switch card white switch
to Local (down). This will
prevent the rack from being unexpectedly powered up by the HMC (or remote power control if the
feature is installed). See Figure 1.
Figure 1. Location of the local remote switch card and the zSeries local remote switch card 
-
Does the rack that you are repairing contain an integrated management console (HMC)? See Figure 2.
Figure 2. Visual overview of Model 941 Rack-1, front 
- Yes, go to the next step.
- No, go to the 208 VDC bus bar gate to service position in step 6.
-
Is this management console being used to guide this repair?
- Yes, you will need to use the service information center to guide this FRU replacement. Bring up the Information Center CD in a PC platform. Go to Rack power and cooling and select this FRU procedure. Then, go to the next step.
- No, go to the next step.
-
Shut down the management console.
- From the navigation area, click HMC Management.
- In the right work area, go to the Operations section
and click Shut Down or Restart. The Shutdown or Restart window opens.
- Select Shutdown HMC, then click OK.
- Wait for the HMC to power off then go to the next step.
-
Open the 208 VDC bus bar gate to service position.
-
Remove the two screws
and open the 208 VDC bus bar gate
to the
service position. See Figure 3.
Figure 3. 208VDC bus bar gate service position 
-
Remove the two screws
- Have the customer remove power from the storage facility.
- Instruct the customer to switch off the circuit breakers
that supply mainline ac voltage to both power receptacles for the
main line power cables to the rack that will have the bus bar FRU
replaced. Attention: Use lockout and tagout procedures as defined in the Electrical Safety for IBM® Customer Engineers.
- Observe the front of both PPSs. Is
the AC INPUT GOOD LED indicator off?
- Yes, the customer has removed power from the correct PPSs. Continue at the next step.
- No, stop. The customer has not removed power from the correct PPSs.
- Determine which PPSs the customer has removed power from.
- Have the customer restore power to the PPSs. The PPS might not power back on fully.
- Observe the LED indicators on the front of both PPSs with a PPS that is fully powered on. If the PPS did not power on fully, you will need to do a pseudo repair of the PPS to power it on. A pseudo repair of the PPS means that you use the normal FRU replacement procedures, but you do not replace or even disconnect the PPS cables. Refer to MAP1230 Replace a FRU without using a serviceable event.
- After both PPSs are powered on, return to this step and have the customer switch off the circuit breaker to the proper PPSs.
- Instruct the customer to switch off the circuit breakers
that supply mainline ac voltage to both power receptacles for the
main line power cables to the rack that will have the bus bar FRU
replaced.
-
Remove power and mainline power cord from the PPSs.
- At both PPSs, set the ac input power module CB00 switch to Off (down).
-
At both PPSs, disconnect the mainline power cord from the ac input power module. Push the two
release levers
. See Figure 4.
-
Remove the cable ties
securing the mainline
power cable to PPS-2 (lower PPS). See Figure 4.
-
Remove the screw and mainline power cable bracket
. See Figure 4.
Figure 4. Power supply main line CB00 switch 
-
At both PPSs, disconnect the rear cables:
- At the rear of both PPSs, disconnect all the cables.
- Remove the cable ties at both PPSs.
- Remove the green/yellow ground wire from both the PPSs. Keep the serrated washers.
-
At the front of the rack (see Figure 5):
- Remove the two screws
and swing open the rack operator panel
. - Remove the two screws
and remove the door latch bracket
.
Figure 5. Rack and power operator panel UEPO open 
- Remove the two screws
-
Put PPS-1 (upper) in service position 2.
-
At the front of the rack, remove the eight black hex head screws that fasten PPS-1 chassis to
the rack. See Figure 6.
Figure 6. PPS chassis remove 
-
Slide PPS-1 fully out to service position 2. The PPS rail detents will click at service
position 1 and then will prevent the PPS from being pushed back in to the normal position. See Figure 7.
Note: To allow the PPS to be pushed back in, you must pull the PPS out to service position 2 (fully extended), release both slide detents
and then push the PPS chassis in
fully. -
At the front of the rack, remove the two screws
securing the PPS to the sheet
metal tray. See Figure 7.
Figure 7. PPS sheet metal screws 
-
Pull the PPS out
about 5 cm (2 inches) further on the sheet metal tray as shown. (This will give more clearance at
the back of the PPS for the next step.) See Figure 8.
Figure 8. Sliding PPS out on sheet metal tray 
-
At the front of the rack, remove the eight black hex head screws that fasten PPS-1 chassis to
the rack. See Figure 6.
- Remove the primary to secondary tie bars.
-
At the rear of the rack, remove the primary to secondary tie bar plastic cover. Loosen but do
not remove the two screws
. The plastic cover has keyhole slots. The cover has tabs that slide behind the upper and low tie
bar. Slide the cover up
, and then remove it. See Figure 9.
Figure 9. Bus bar cover 
- Remove the bolt securing each end of the four upper
tie bars
and remove the tie bars
. Do not remove the lower four tie
bars. See Figure 10.
Figure 10. Lower tie bars 
-
At the rear of the rack, remove the primary to secondary tie bar plastic cover. Loosen but do
not remove the two screws
-
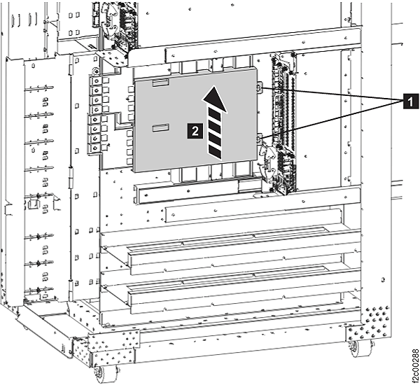
Remove two storage enclosures
if installed.
-
At the rear of the rack, remove middle two storage enclosures (if installed). See Figure 11.
Figure 11. Middle storage enclosures 
-
Each storage enclosure, disk drive module (DDM)
, Fibre Channel interface card
and FC-AL cable
must be in the exact same position when reinstalled in later steps.
-
Observe the cable labeling to ensure you will be able to replug the cables correctly.
Disconnect the FC-AL cables from the two Fibre Channel interface cards
(FCIC) by squeezing the top of the FC-AL cable connector
to
release it from the FCIC card. See Figure 12.
Figure 12. DDM Fibre Channel cable
Note: There will be four FC-AL cables if this is the last storage enclosure in this group. There will be eight FC-AL cables if this is not the last storage enclosure in this group. - Remove the four screws fastening the storage enclosure to the rack mount rails.
-
Remove each DDM
and FCIC card
from the
storage enclosure and set in a safe place. You must ensure each one will be plugged in the same
position in the new storage enclosure. It is recommended you write down the serial number and
position of each part before removing them. See Figure 12.
-
At the rear of the rack, remove middle two storage enclosures (if installed). See Figure 11.
- Remove the sense cables.
- Use the two storage enclosure slots that are now empty
to access the sense cable connectors. Disconnect the four storage
enclosure power/sense cables from the white connectors.
- If you are replacing the sense cable to the front sense card, only disconnect the cables that connect to the four front storage enclosures.
- If you are replacing the sense cable to the rear sense card
, only disconnect the cables that connect
to the four rear storage enclosures. Squeeze the release tab
and then unplug the cable.
-
Squeeze the tabs
on
both ends of the white connector to release it from the sheet metal and push it towards the
PPS.
Figure 13. Sense cable connectors 
-
If you are replacing the sense cable to the front fan sense card, the upper front connectors
and lower connectors
should be hanging loose. If you are replacing the sense cable to the rear fan sense card, the upper rear connectors
and lower connectors
should be hanging loose. See Figure 14.
- If you are replacing the sense cable to the front fan sense card, the upper front connectors
and lower connectors
should be hanging loose. - If you are replacing the sense cable to the rear fan sense card, the upper rear connectors
and lower connectors
should be hanging loose.
Figure 14. Sense cable connectors 
- If you are replacing the sense cable to the front fan sense card, the upper front connectors
- Disconnect the sense cable from the four connectors (J1, J2, J3, J4) on the fan sense card. Remove the cable from the rack.
- Use the two storage enclosure slots that are now empty
to access the sense cable connectors. Disconnect the four storage
enclosure power/sense cables from the white connectors.
Install storage enclosure to upper fan sense cable
Procedure
- Install the sense cable and tie bars.
- Connect the fan sense cable to the fan sense card connectors (J1, J2, J3, J4). Route the cable and install the white connectors into the sheet metal cutouts above and below the tie bars that were removed.
- Install the primary to secondary tie bars. Important: The bolts must be torqued to 8 to 11 newton meters (6 - 8 foot pounds) to make proper contact.
- Install the tie bar plastic cover.
- There are tabs on the inside of the cover that must slide down behind the tie bars.
- The keyhole slots in the cover must slide over the two screws near the PPS.
- Tighten the two screws.
- Install the two storage enclosures.
- Install each storage enclosure in the original position with the four screws.
- Install each CEC disk drive and Fibre Channel interface card in the original position in the storage enclosure.
- Connect each FC-AL cable in the original position.
-
Place PPS-1 in the normal position.
- At the front of the rack, push PPS-1 fully in on the sheet metal tray and install the two screws.
-
Slide the PPS back to the normal position. If you pull the PPS from the rear of the rack, it is
easier to ensure that the cables do not get caught.
Note: To allow the PPS to be pushed back in, you must pull the PPS out to service position 2 (fully extended), release both slide detents and then push the PPS chassis in fully.
-
Install the eight black hex head screws
that fasten each PPS chassis to the rack.
-
Close the rack operator panel
and install the two screws
. Install the door latch bracket with two screws. See Figure 15.
Figure 15. Rack and power operator panel UEPO close 
-
At PPS-1, connect the rear cables.
- At the rear of both PPS-1, connect all the cables.
- Install the cable ties.
- Install the green/yellow ground wire. Ensure that the serrated washer is between the wire and the PPS or frame.
- Connect the power.
- Connect the mainline power cable to the PPS and ensure that both latches are secure.
- Set the PPS ac input power module CB00 switch to On (up).
- Instruct the customer to switch on the mainline circuit breaker that supplies mainline ac voltage to the power receptacle for PPS-1.
-
At the front of the rack, observe the PPS AC INPUT GOOD LED. Is the LED off on both PPSs?
- Yes, go to the next step.
- No, return to step 4.
-
208 VDC bus bar gate to normal position.
-
Pivot the 208 VDC bus bar gate
closed being careful that both
mainline power cables lay in the space between the two 208-VDC bus bars. Fasten the gate shut with
the two screws
.
Figure 16. Bus bar gate closing 
-
Pivot the 208 VDC bus bar gate
- Power on the rack.
- Set the local/remote switch card white switch to Remote (up).
- Use the management console to power on the storage facility subsystem.
- Exit this service information center parts exchange procedure and return to the procedure that sent you here.